logotype 8-964-939-07-01

Проект 7

Харакеристики

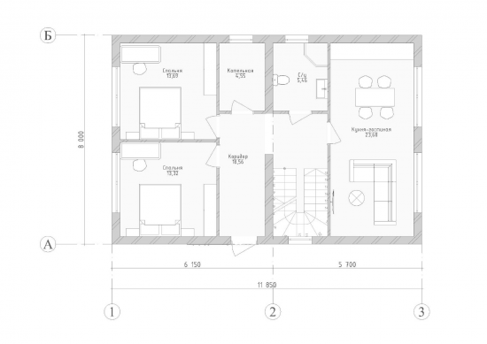
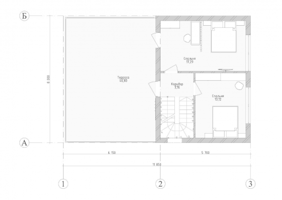
Площадь: 192 м

Размеры: 12 x 8

Этажность: 2 этажа

Санузлы: 2

check Негорючий

check Безопасный

check Крепкий

check Теплый

check Сертифицирован

Стоимость: от 8 392 400
Заказать консультацию

Вожможна индивидуальная планировка дома

Этап

Что входит?

Цена (₽)

В ипотеку

1

Домокомплект с доставкой

Стены + крыша

Узнать стоимость

Узнать стоимость

2

Коробка дома

Фундамент + стены + крыша + гидроизоляция

Узнать стоимость

Узнать стоимость

3

Тёплый контур

Фундамент + стены + крыша + окна + двери + техническая лестница

8 392 400 р.

8 392 400 р.

1Цены в ипотеку включают комиссии банков, а не застройщика

За что вы реально платите
при строительстве дома?

01

Материалы – это лишь часть стоимости строительства

Закупка утеплителя, стеновых блоков, растворов и крепежа – это только 30-40% от общей стоимости дома.
Остальное – работа, доставка, логистика, подключение коммуникаций, герметизация, крыша и многое другое.

02

Работы – это отдельная статья расходов

Строители работают не бесплатно, и если вы нанимаете бригаду, то должны учитывать стоимость их услуг. Чем сложнее монтаж (например, утепление каркасного дома), тем выше затраты на работу.

03

Сроки строительства = стоимость вашего времени

Пока дом строится, вам приходится арендовать жильё или тратить деньги на временное проживание. Чем быстрее готов дом – тем меньше потерь.

04

Человеческий фактор: задержки, ошибки, брак

Частные бригады – это всегда риск: рабочие могут заболеть, сорвать сроки, неправильно утеплить дом. Ошибки при утеплении ведут к промерзанию, сквознякам и теплопотерям, исправление которых – это дополнительные расходы.

05

Дополнительные траты на переделки и доработки

Если при самостоятельном строительстве что-то пошло не так (например, плохо заизолированы стены), исправление ошибок обойдётся ещё дороже, чем качественное строительство с гарантией сразу

06

Дома-Дом = фиксированная стоимость, гарантии, отсутствие сюрпризов

Мы фиксируем сроки и цену в договоре, исключая перерасход бюджета. Ваш дом будет построен вовремя и без скрытых расходов.

Мы строим дома без лишних расходов и рисков:

check Фиксируем стоимость

check Контролируем качество

check Даём гарантии

Рассчитать стоимость вашего домать заявку

Полистиролбетонные дома не требуют дополнительного утепления –

это уже включено в стоимость!

О материале

Как работает ипотека с эскроу-счетами?

faq1 Что такое эскроу-счет?

faqArrow
  • Когда вы берёте ипотеку, банк переводит деньги не сразу застройщику, а на специальный эскроу-счёт.
  • Застройщик может пользоваться деньгами только для оплаты строительных услуг: закупки материалов, аренды техники, работы подрядчиков.
  • Это гарантирует, что деньги используются исключительно на строительство вашего дома, а не на сторонние нужды компании.

check Так государство защищает дольщиков и покупателей жилья

faq2 Почему льготная ипотека стоит дороже?

faqArrow
  • Льготные проценты – это не подарок банка, а схема, в которой застройщик сразу платит банку 19% от суммы кредита.
  • Например, если одобрена ипотека на 10 млн рублей, застройщик сразу отдаёт банку 1,9 млн руб.
  • В итоге банк получает сразу 19% сверх кредита, а клиент – льготную ставку.

check Фактически, льготная ипотека финансируется за счёт застройщиков

faq3 Кто получает проценты с денег на эскроу-счёте?

faqArrow
  • Банк не просто "держит" деньги на эскроу-счёте, а использует их в своих финансовых операциях.
  • За это он выплачивает застройщику 1% годовых за средства, хранящиеся на счёте.
  • Если дом строится до 1 года, застройщик может получать эту ставку.

check То есть деньги "не лежат без дела", но застройщик не получает с них больших доходов.

Почему ипотека в цене выше?

Удорожание стоимости при покупке в ипотеку связано только с условиями банков

check

Единовременный платёж 19% с кредита в банк.

check

Комиссии за операции с эскроу-счетами.

check

Процент, который банк получает за управление средствами.

Важно: Ни одна из этих сумм не идёт застройщику в прибыль – это исключительно банковские комиссии и регуляторные требования

Мы строим дома по честной цене, но стоимость в ипотеку неизбежно выше из-за особенностей банковских программ.

Нам доверяют

С нами сотрудничают следующие организации

1
2
3
4
5

Как это работает?

1

1. Выбор проекта

  • Выбираете проект из каталога или заказываете индивидуальный.
  • Рассчитываем предварительную стоимость.
  • Обсуждаем детали, вносим изменения под ваши пожелания.
выбрать проект
2

2. Заключение договора и ипотека

  • Помогаем с оформлением ипотеки (Семейная, IT).
  • Заключаем договор с фиксированной ценой.
  • Определяем сроки строительства.
3

3. Производство и подготовка

  • Изготавливаем комплект дома на нашем производстве.
  • При необходимости подготавливаем участок.
  • Планируем доставку и монтаж.
4

4. Монтаж дома за 3 дня

  • Привозим комплект дома на участок.
  • Возводим коробку за 3 дня.
  • Контролируем процесс на каждом этапе.
5

5. Передача дома и гарантия

  • Проверяем качество и подписываем акты.
  • Вы получаете ключи от своего дома.
  • Гарантия на все материалы и конструкцию.

Не нашли идеальный проект?

Давайте обсудим ваш – мы поможем с
проектированием, расчетами и строительством!

Оставить заявку